Building the Server Density London office – part 1
Table of Contents
Originally published on the Server Density blog.
We’re in the process of setting up a London office. Currently our team works remotely from home, which works well for engineering but we thought it might be more difficult as we start to hire more design, marketing and accounts people. Nobody is being required to work from the office (although a couple are voluntarily moving to London) and we’ll continue to hire engineering from anywhere in the world. We’re also getting more requests to meet our customers so having a fancy office to show off to people as we grow started to be of interest.
Our products start with design and we spend a lot of time making sure things look good, so we wanted to do the same with the office. As such, we’re going to be located in a brand new building which has just be built. This gives us the opportunity to have the interior custom designed to our spec, which is being done by a professional architect.
Naturally, we’ll be blogging about the process so this is the first in a series of posts as things progress towards our opening date at the end of Jan 2012.
Inspiration
- Fog Creek’s original offices and photos of the new office they moved into a few years ago. I visited their offices for lunch with their sysadmin team so was able to get a first hand tour of how they’ve done things. We won’t be going for individual developer offices but the overall philosophy of spending (investing) in a good office setup is something we’re applying too.
- eConversions open plan offices and in particular, good quality desks and chairs. I used to work at eConversions and helped influence many of the office choices back then, learning what works and what doesn’t.
- 37signals’s office
Of course, these companies are all big and extremely profitable so we can’t copy everything. We’re still a small startup and despite some excellent growth, we can’t yet justify spending $10,000 on a coffee machine! That makes the challenge even greater – how to create an amazing office on a much lower budget. It also has to been eco-friendly.
Exterior #
The building is across 3 floors and split up into several units. We’ll be in 2 units across 3 floors. It’s located near Turnham Green Tube station in Chiswick, West London. This is a nice quiet area out of the centre with easy transport links on the London Underground and Overground. Nobody likes rushing into Central London, squashed up against other commuters. So when people are heading into work in the morning, we’ll be heading out to West London and vice versa in the evening. But it’s not too quiet with plenty of excellent restaurants and shops on Chiswick High Street. It’s also just a few miles from Heathrow Airport.
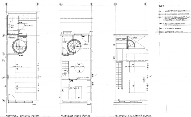
Interior blueprints #
The ground floor was originally intended to be self contained with the first and second (mezzanine) floors connected via a stairwell. We’re going to be occupying all 3 floors so are putting in a spiral staircase between the ground and first floors.
The main entrance to the office will be through the first floor. This will provide a welcome area with a meeting table and chairs. The second and ground floors will then be working areas which will provide a nice separation to allow for quieter design/development to happen on the second floor and nosier accounts and marketing activity to take place on the ground floor, along with a kitchen. The first floor also has a separated office which can be used ad-hoc.
There are toilets on both the ground and first floors and the first floor is accessible by an outside lift as well as the spiral staircase.
Infrastructure components #
10/100 ethernet is very 1990s so we’re installing Cat6 Gigabit Ethernet cabling throughout the office. The internet line will terminate on the ground floor in a cabinet at the back, with trunk lines running up to a dedicated switch on each level. Cabling will run through the walls to various ports, usually alongside power outlets. At the desk areas, an in-floor box will provide connectivity and power to each workstation.
Everyone loves the weather in the UK. Random weeks of extreme heat in the summer and snow storms throughout the winter. This means we need to maintain a constant temperature so computer equipment doesn’t overheat and everyone is comfortable working without needing to run fans and heaters throughout the place. As such, air conditioning is built into each floor designed to provide flow throughout the entire floor from a single unit. This reduces cost and makes sure nobody is sitting directly under an ice box.
Electricity and plumbing is pretty standard but we have been discussing instant hot water taps to avoid the need for wasting energy through kettle boiling, however the real world energy efficiency of these has to be carefully measured so you’re not keeping water constantly hot unnecessarily.
Photos #